Turbine cabins
Installation, details, options

For a larger view, please mouseover the image.
Seal tight jointing between elements
Each panel has specially shaped edges and a elastomeric shaped static seal (packing) is fixed all around. When the set is screw tighted this packing between the surfaces is making the assembly air tight.
For a larger view, please mouseover the image.
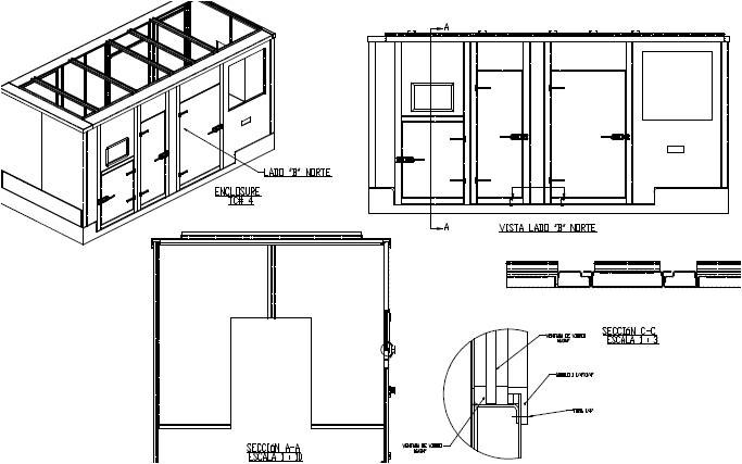
Seal tight jointing between elements
Each panel has specially shaped edges where an elastomeric shaped static seal (packing) is fixed. When the set is screw tightened, this packing seals between the surfaces and makes the assenbly air tight.